Szczegóły
Miasto
Kraków
Dzielnica
Zabłocie
Ulica
Symbol
APH-LW-17214
Cena
10 439 PLN
Depozyt
trzymiesięczna
Czynsz administracyjny
Opłaty w czynszu
administracja, CO, Części wspólne, fundusz remontowy, ogrzewanie, Winda, woda, woda ciepła, zaliczka na fundusz remontowy
Opłaty wg liczników
prąd
Powierzchnia
104 m2
Piętro
Ilość pięter
5
Ilość łazienek
Umeblowanie
Wyskokość pomieszczeń
Garaż
Winda
Ogrzewanie
C.O. miejskie
Klimatyzacja
tak
Rodzaj budynku
blok
Przeznaczenie lokalu
biurowo - magazynowy, biurowy, handlowo-usługowy, handlowy, inny, magazynowy, usługowy
Położenie lokalu
ulica osiedlowa
Miejsce na reklamę
na witrynie
Opis
Do wynajęcia parterowy lokal usługowy w nowej inwestycji w dzielnicy Zabłocie, Podgórze.
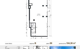
Lokal o powierzchni 104,39 m2 położony jest na parterze i składa się z:
- powierzchni tylu open space
- toalety
- przedsionka
- pomieszczenia socjalnego
Lokal nie nadaje się pod gastronomię.
Lokal z dużymi witrynami położony jest wśród budynków mieszkalnych oraz w bliskiej odległości Ocean Office Park. Prezentowana nieruchomość jest w stanie deweloperski do własnej aranżacji. Dodatkowo intencje możliwość klimatyzacji. Wynajmujący przewiduje dwumiesięczne wakacje czynszowe na czas adaptacji lokalu. Za dodatkową opłatą istnieje możliwość wynajęcia miejsc postojowych w garażu podziemnym w cenie 300zł netto.
W tej samej inwestycji posiadamy również inne lokale o powierzchni 104 i 96 m2
Dostępny od już.
OPIS BUDYNKU:
Nowy budynek mieszkalny z lokalami parterowymi na parterze znajduje się w inwestycji przy w dzielnicy Zabłocie (Podgórze).
OPIS LOKALIZACJI:
Inwestycja znajduje się zaledwie kilka minut spacerem od centrum Handlowego Tandeta, Akademia Krakowska, Orange Office Park, Faktory Bussines park, Ocean Bussines park, który skupia na swoim terenie takie korporacje jak znajduje się Krakowska Akademia im. Andrzeja Frycza Modrzewskiego , Orange Office Park, który skupia na swoim terenie takie korporacje jak BROWN BROTHERS HARRIMAN, SAPPI, CISCO, ENTERPRISE, SALESmanago, Ocean Business Park. Bardzo dobra komunikacja miejska, doskonałe połączenie do centrum miasta.
Cena
10439 zł netto + 1565,85 zł netto opłata administracyjna + prąd
Lokal o powierzchni 104,39 m2 położony jest na parterze i składa się z:
- powierzchni tylu open space
- toalety
- przedsionka
- pomieszczenia socjalnego
Lokal nie nadaje się pod gastronomię.
Lokal z dużymi witrynami położony jest wśród budynków mieszkalnych oraz w bliskiej odległości Ocean Office Park. Prezentowana nieruchomość jest w stanie deweloperski do własnej aranżacji. Dodatkowo intencje możliwość klimatyzacji. Wynajmujący przewiduje dwumiesięczne wakacje czynszowe na czas adaptacji lokalu. Za dodatkową opłatą istnieje możliwość wynajęcia miejsc postojowych w garażu podziemnym w cenie 300zł netto.
W tej samej inwestycji posiadamy również inne lokale o powierzchni 104 i 96 m2
Dostępny od już.
OPIS BUDYNKU:
Nowy budynek mieszkalny z lokalami parterowymi na parterze znajduje się w inwestycji przy w dzielnicy Zabłocie (Podgórze).
OPIS LOKALIZACJI:
Inwestycja znajduje się zaledwie kilka minut spacerem od centrum Handlowego Tandeta, Akademia Krakowska, Orange Office Park, Faktory Bussines park, Ocean Bussines park, który skupia na swoim terenie takie korporacje jak znajduje się Krakowska Akademia im. Andrzeja Frycza Modrzewskiego , Orange Office Park, który skupia na swoim terenie takie korporacje jak BROWN BROTHERS HARRIMAN, SAPPI, CISCO, ENTERPRISE, SALESmanago, Ocean Business Park. Bardzo dobra komunikacja miejska, doskonałe połączenie do centrum miasta.
Cena
10439 zł netto + 1565,85 zł netto opłata administracyjna + prąd