Details
City
Kraków
Quarter
Kazimierz
Street
Krakowska
Id
APH-MS-16935
Price
434 000 PLN
Cena/m2
18 460 zł/m²
House community fee
Costs included in House community fee
administration, advance on the repair fund, co, common parts, lift, Repair fund, heating, Water, Sewage export
Costs depending on use
Area
24 m2
Floor
4
No. of rooms
0
No. of Toilets
Furniture
Balcony
yes
Garage
no
Winda
Heating
district heating
Air conditioning
no
Building type
tenement house
Built in
Stan prawny
Description
For sale stuio apartment in the Kazimierz district, just a few minutes' walk from the Main Square.
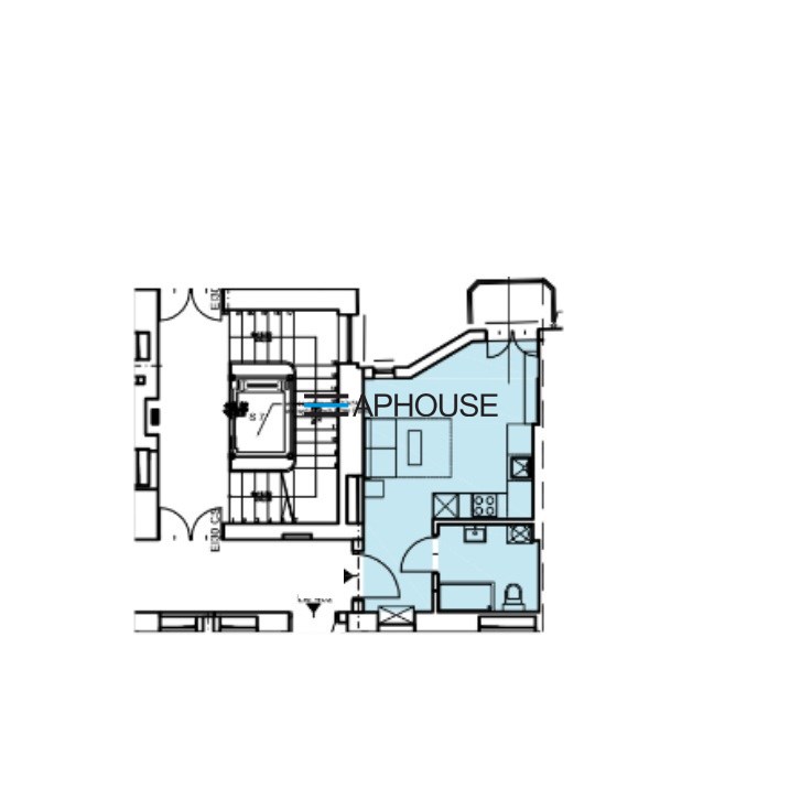
Apartment with an area of approximately 27 m², is located on the 4th floor of a tenement building near Krakowska Street. The apartment can be customized and can be divided into:
- a living room with a kitchenette
- a bathroom
- a hallway
- a balcony
The apartment also includes a basement.
We also offer other apartments in this Invest
This apartment can be customized. An excellent option for those looking for an investment, a capital investment, or to live in. Due to its location, it is ideal for both long- and short-term rentals.
The building will be undergoing renovations to enhance the value and standard of the development. The future owners will decide on the scope of the renovations. Exceptions, which every buyer must agree to, include: connecting the building to the municipal heating and domestic hot water network, replacing the windows, replacing the roof covering, repairing the facade, and installing an elevator.
An estimated PLN 3,500 per square meter for renovations should be added to the purchase price. This amount will be paid in installments according to the renovation schedule.
A major advantage of the property is its location: just a 10-minute walk to the Main Market Square, approximately 5 minutes to the Planty Park, approximately 10 minutes to Wawel Castle, and 5 minutes to the bus and tram stops. Urban green spaces are also nearby – Planty Park and the Vistula Boulevards are just a few minutes away.
This is an excellent option for those looking for an investment or a capital investment. Due to its location, it is ideal for both long- and short-term rentals.
PRICE
Promotional price: 434,000PLN
Apartment with an area of approximately 27 m², is located on the 4th floor of a tenement building near Krakowska Street. The apartment can be customized and can be divided into:
- a living room with a kitchenette
- a bathroom
- a hallway
- a balcony
The apartment also includes a basement.
We also offer other apartments in this Invest
This apartment can be customized. An excellent option for those looking for an investment, a capital investment, or to live in. Due to its location, it is ideal for both long- and short-term rentals.
The building will be undergoing renovations to enhance the value and standard of the development. The future owners will decide on the scope of the renovations. Exceptions, which every buyer must agree to, include: connecting the building to the municipal heating and domestic hot water network, replacing the windows, replacing the roof covering, repairing the facade, and installing an elevator.
An estimated PLN 3,500 per square meter for renovations should be added to the purchase price. This amount will be paid in installments according to the renovation schedule.
A major advantage of the property is its location: just a 10-minute walk to the Main Market Square, approximately 5 minutes to the Planty Park, approximately 10 minutes to Wawel Castle, and 5 minutes to the bus and tram stops. Urban green spaces are also nearby – Planty Park and the Vistula Boulevards are just a few minutes away.
This is an excellent option for those looking for an investment or a capital investment. Due to its location, it is ideal for both long- and short-term rentals.
PRICE
Promotional price: 434,000PLN