Compare properties

Compare

No properties found to compare.

Mieszkanie na sprzedaż, Kraków, Karmelicka

1 360 000 PLN
321 000 EUR
Property ID: APH-MS-17229
Szczegóły
Miasto Kraków
Dzielnica Stare Miasto
Ulica Karmelicka
Symbol APH-MS-17229
Cena 1 360 000 PLN
Cena/m2 17 436 zł/m²
Czynsz administracyjny 669 PLN
Opłaty w czynszu administracja, Części wspólne, fundusz remontowy, monitoring, sprzątanie, Winda, woda, woda/ryczałt na wodę, wywóz nieczystości, wywóz śmieci, zaliczka na fundusz remontowy
Opłaty wg liczników gaz, prąd
   
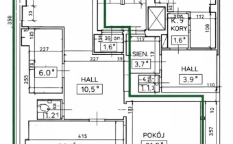
Powierzchnia 78 m2
Pietro 1
Ilość pokoi 2
Ilość łazienek 1
Umeblowanie
Balkon jest
Garaż brak
Winda
Ogrzewanie gazowe
Klimatyzacja nie
Rodzaj budynku kamienica
Rok budowy 1930
Stan prawny
Dostępne od do uzgodnienia
Opis
DWUSTRONNE MIESZKANIE Z 2 ODDZIELNYMI POKOJAMI I ODDZIELNĄ KUCHNIĄ Z BALKONEM W KAMIENICY Z WINDĄ. ULICA KARMELICKA, W POBLIŻU PARK KRAKOWSKI, PLAC INWALIDÓW ORAZ TEATR BAGATELA, DZIELNICA STARE MIASTO.
 

OPIS NIERUCHOMOŚCI
Mamy przyjemność zaprezentować ofertę klimatycznego przestronnego mieszkania zlokalizowanego na 1. piętrze budynku z windą. Jego metraż to 78m2 na co składają się:
- osobna jasna kuchnia ze spiżarnią i balkonem,
- oddzielny salon,
- duża sypialnia,
- łazienka z wanną,
- oddzielna toaleta,
- przedpokój.
 
Nieruchomość wykończona przy użyciu wysokiej jakości materiałów takich jak gres czy naturalne drewno (jodełka francuska na podłogach), białe meble lakierowane na wymiar. Na wyposażenie kuchni składają się: płyta, piekarnik, mikrofala, lodówko-zamrażarka, zmywarka, kawiarka. Funkcjonalna łazienka z wanną i pralką. Oddzielna toaleta. Możliwe zaaranżowanie dwóch miejsc do pracy w domu. Sporo miejsca na przechowywanie dzięki licznym szafom w zabudowie. Dodatkowym atutem jest duża piwnica o powierzchni 8m2.

OPIS BUDYNKU
Kameralna modernistyczna kamienica w bardzo dobrym stanie z podwórzem. Odnowiona klatka schodowa. Ogrzewanie i ciepła woda z indywidualnego II-funkcyjnego pieca gazowego.
 
OPIS LOKALIZACJI
Mieszkanie znajduje się w otoczeniu zabytkowych kamienic Starego Miasta, nieopodal Teatr Bagatela, 5 minut spacerem do Rynku Głównego i 15 minut do Galerii Krakowskiej. W pobliżu świetnie rozwinięta infrastruktura handlowo-usługowa. Bogata siatka połączeń tramwajowych i autobusowych (przystanek Plac Inwalidów i Batorego). 
 
CENA
1.360.000 zł (w tym piwnica 8m2)

opłata administracyjna 669 zł / 2 osoby (w tym 12m3 wody)


Zapraszamy do kontaktu z naszym biurem w celu prezentacji nieruchomości.
Lokalizacja
You don't have permission to register
Umów wizytę